林芝市自然资源局
我局受理了林芝市住房和城乡建设局的方案审批申请,正在对《林芝市中心城区实施城市更新建设生态文明城市——迎宾大道、广州大道、八一大街基础设施提升改造项目及给排水管网改造项目规划设计方案》审查。为广泛征求公众意见和建议,保障利害关系人的合法权益,现对《林芝市中心城区实施城市更新建设生态文明城市——迎宾大道、广州大道、八一大街基础设施提升改造项目及给排水管网改造项目规划设计方案》进行公示。
一、该项目位于:林芝市中心城区迎宾大道、广州大道、八一大街沿线。
二、该项目建设内容为:
1.市政基础设施提升:更新改造迎宾大道、广州大道、八一大街三条路沿线路灯和智慧红绿灯,新建智慧斑马线,改造道路交通岛,新建城市道路停车诱导牌,道路沿线停车画线车位,新建2座公厕,提升改造6座公厕,以及智慧交通信号管理系统、智慧灯杆管理系统
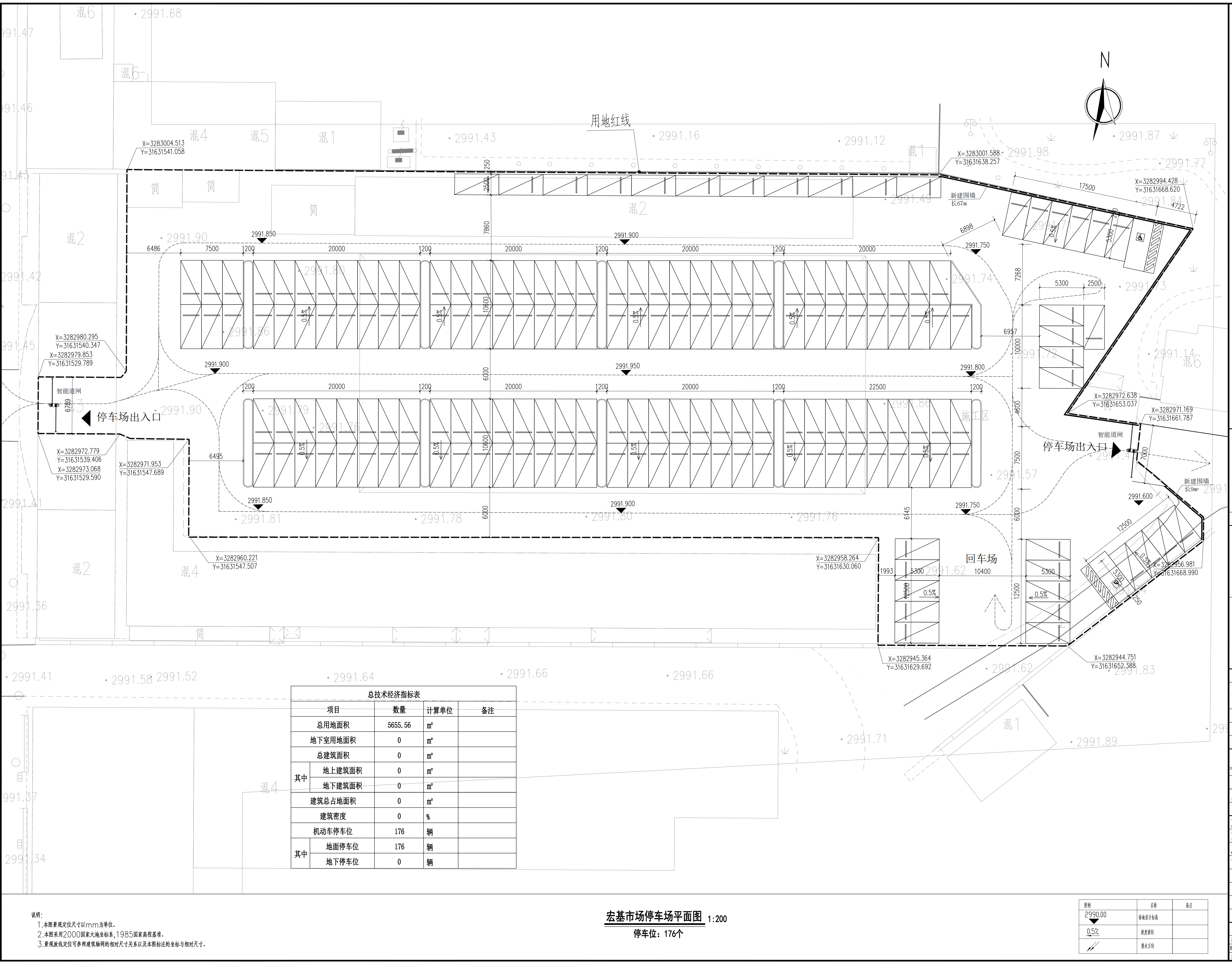
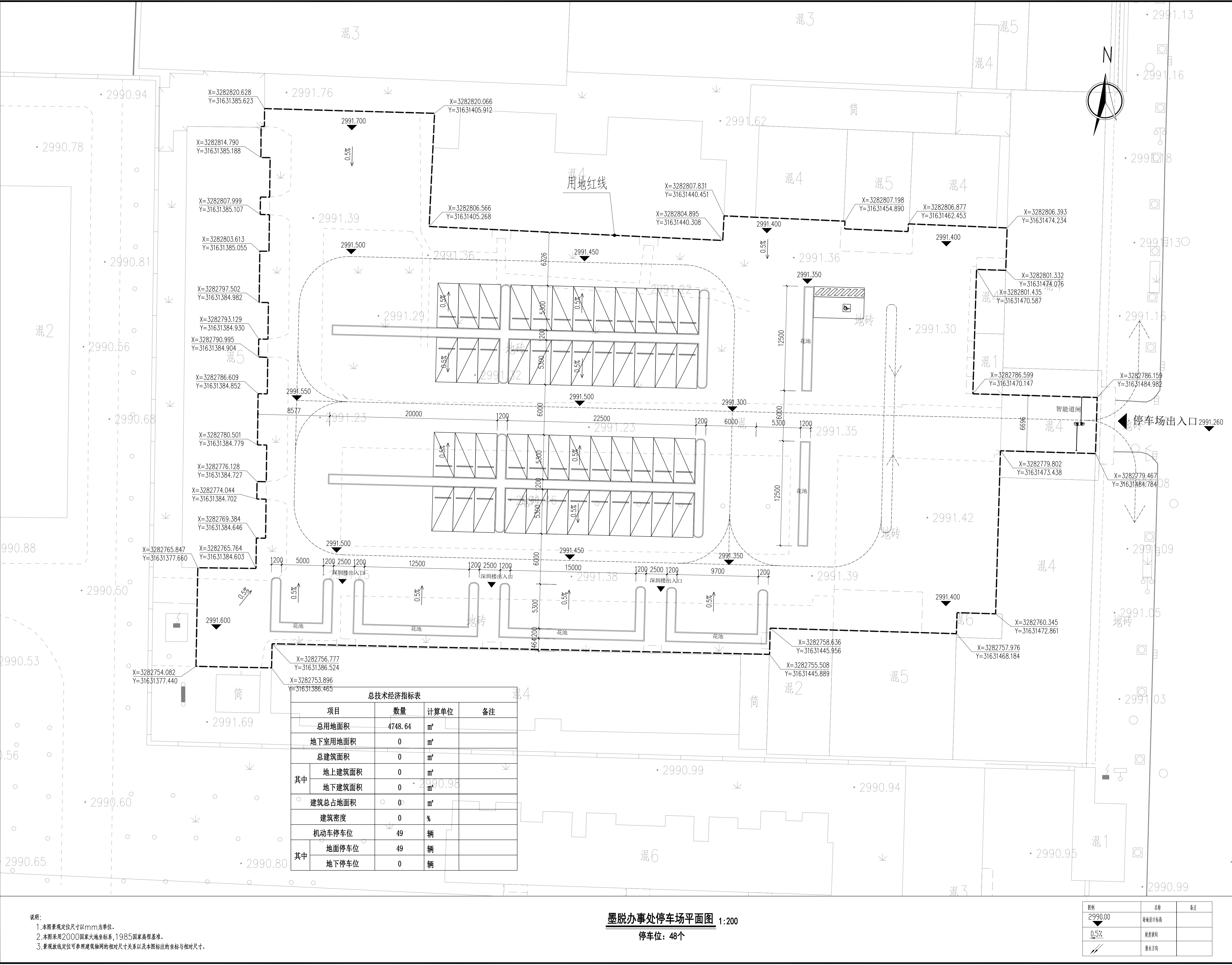
2.智慧停车场建设:包括新建及改造6个公共停车场,其中2个为地上+地下停车场(百益超市、市政府东侧),1个为地下停车场(厦门广场停车场),3个为地上停车场(宏基市场停车场、摩托办事处停车场、巴宜区林草局停车场)。
3.景观提升:道路提升改造,包括:沿线绿地提升,人行道和非机动车道修复,道路沿线路牌、车挡栏杆、树篦子、座椅家具等。沿线15个公园节点提升,包括1个社区公园及14个口袋公园。
4.给排水管网改造:更新改造迎宾大道、八一大街、广州大道三条路沿线污水管、雨水管,清修复管道,新建给水管,架空线下地。
三、公示时间:2024年8月21日至2024年9月4日(含节假日),共15日。
四、反映方式和时限:如您认为该项目影响到您的合法权益,或者您对该方案设计有意见或建议,请在公示期内通过电话、书面传真等形式向我局反馈意见,或者直接前往我局国土空间规划科进行反馈。有效的反馈意见、建议必须包括反馈者的真实姓名、有效的联系方式、所提意见或建议内容,并提供公示事项影响到您合法权益的证明。我局将对反馈意见予以充分考虑,并作为本次行政许可的参考依据。
如需申请听证的,请于公示当日起10日内提交书面听证申请,并说明听证理由和内容。
联系人:李锐杰,联系电话:0894-5828456
传真:0894-5828456
地址:林芝市巴宜区八一镇广福大道79号
附件:《林芝市中心城区实施城市更新建设生态文明城市——迎宾大道、广州大道、八一大街基础设施提升改造项目及给排水管网改造项目规划设计方案》
林芝市自然资源局
2024年8月21日
























